Transcript scarica il pdf - Beta Costruzioni srl
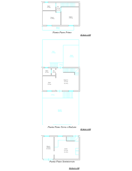
BIFAMILIARE 1 Consegna: primavera 2016 BIFAMILIARE 4 BIFAMILIARE 3 BIFAMILIARE 2 Balcone 2 2,75 m2 Box 33,75 m2 Cucina 10,70 m2 Camera 1 10,55 m2 Bagno 6,95 m2 Camera 2 9,00 m2 Disimp. 1,00 m2 Bagno 4,40 m2 REI 120 Soggiorno 20,30 m2 Camera matrim. 15,00 m2 C.T. Cantina 16,10 m2 PIANO SEMINTERRATO Disimp. 2,90 m2 PIANO TERRA Balcone 1 5,60 m2 PIANO PRIMO