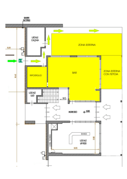
Transcript (Box P1-P2

ARTMAX GROUP srls
BOX P1-P2-P3
ARTMAX GROUP srls
6,5cm
540cm
6,5cm
6,5cm
Tela GRAFICA 529*49 cm
BANCO
Pr.Prol.+ciabatta
Pr.Prol.+ciabatta
BANCO
96
96
96
Pr.Prol.+ciabatta
360cm
P3
BANCO
Ripostiglio
96
96
96
Pr.Prol.+ciabatta
96
Ripostiglio
96
Tela GRAFICA 709*49 cm
720cm
96
6,5cm
BANCO
Tela GRAFICA 529*49 cm
6,5cm
6,5cm
540cm
6,5cm
4cm
889cm
BOX P1-P2-P3
Pr.Prol.+ciabatta
Pr.Prol.+ciabatta
300cm
6,5cm
6,5cm
96
96
P1
BANCO
BANCO
360cm
96
96
P2
Pr.Prol.+ciabatta
96
N°3 Mensole
N°3 Mensole
96
96
96
Ripostiglio
Pr.Prol.+ciabatta
N°3 Mensole
6,5cm
6,5cm
4cm
772cm
96
ARTMAX GROUP srls
BOX P1-P2-P3